The work, ideas/concepts and images shown on this page are the creative and intellectual property of the students named and are not to be copied, published or dispersed without the express written consent of the creator and/or author. Unauthorized use is prohibited.
Furniture and Cabinet Design
Elizabeth Watts | Rise & Shine Bakery


Design II
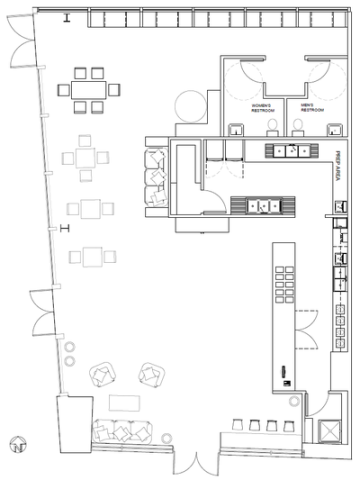
Hannah Elliot | Verve Bowls






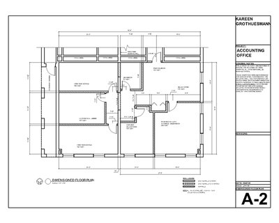
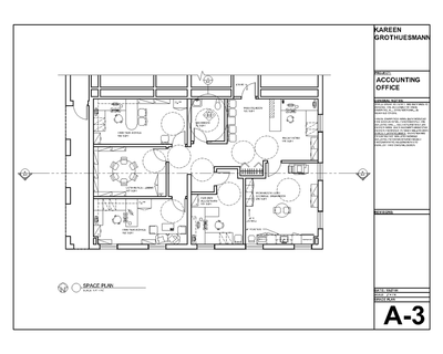
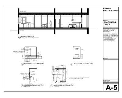
CAD I & II / DESIGN I
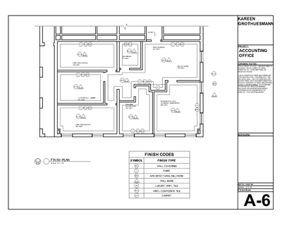
Kareen Grouthuesmann | Accounting Office






Green Design
Katie Hagens | Enviro House



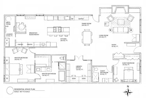
Residential Design
Jackie Butterfield


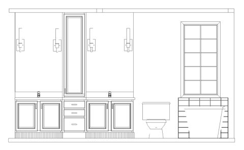
Kitchen & Bath Design
Amelia Ciley | Bathroom Design



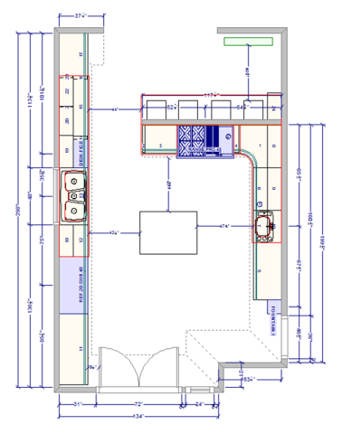
Kitchen Design
Kelly Inman



History of Interiors
Audrey Peterson | Paige Tyson
Edwardian Era Paneled wall | Formal Paneled Wall


Intro to Technology for Interior Designers
Bridgette Mullins | SketchUp, Photoshop and InDesign




Textiles -
Students acquire an understanding of textile properties and differentiating different fabric types. In this project the students applied their knowledge by designing a window treatment and choosing a complementary upholstery fabric, as well as calculating yardage.
Ashlee Canzler | Emily Tyndall


Materials, Methods and Techniques of Interior Design -
Selecting appropriate residential materials, estimating quantities for the provided space and representing them through illustrations & on color boards.
Tatyana Avramenko | Rachel Bertrand


Color Theory -
Mixed gouache paints
Amelia Cilley | Nataliya Gerasimova


Interior Design & the Design Process | The Gloo Chair
Sarah Krauter


NKBA Corian Competition Winners 2012
Shara Eppert | Brandon Riem | Lara Sisco


